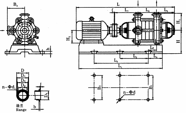
D型泵外形安装尺寸图(公用底座)
The overall dimensions(common base)

D型泵外形安装尺寸图(本身底座)
The overall dimensions(common base)

|
泵型号 Type of pump |
级数 No.of stage |
外 形 安 装 尺 寸 (公 用 底 板) Overall Dimensions (Common Base) |
泵重 Weight of Pump (kg) |
电动机 Motor |
|||||||||||||||||||||
|
型号 Type |
功率 Power(kg) |
重量 Weight(kg) |
|||||||||||||||||||||||
|
L |
L1 |
L2 |
L3 |
L4 |
L5 |
L6 |
L7 |
L8 |
C |
B |
B1 |
B2 |
B3 |
H |
H1 |
H2 |
h |
n-Φ d |
| ||||||
|
D6-25 |
3 |
1175 |
985 |
|
650 |
140 |
240 |
180 |
275 |
55 |
3 |
|
440 |
440 |
170 |
230 |
30 |
183 |
30 |
4-Φ24 |
207 |
Y132S1-2 |
5.5 |
90 |
|
|
4 |
1225 |
985 |
|
650 |
140 |
230 |
120 |
440 |
440 |
230 |
183 |
30 |
4-Φ24 |
219 |
Y132S2-2 |
7.5 |
100 |
||||||||
|
5 |
1275 |
985 |
|
650 |
140 |
280 |
130 |
440 |
440 |
230 |
183 |
30 |
4-Φ24 |
231 |
Y132S2-2 |
7.5 |
110 |
||||||||
|
6 |
1450 |
1205 |
|
785 |
195 |
330 |
120 |
485 |
485 |
240 |
225 |
30 |
4-Φ24 |
243 |
Y160M1-2 |
11 |
120 |
||||||||
|
7 |
1500 |
1205 |
|
785 |
176 |
380 |
180 |
485 |
485 |
240 |
225 |
30 |
4-Φ24 |
258 |
Y160M1-2 |
11 |
130 |
||||||||
|
8 |
1550 |
1306 |
|
835 |
176 |
430 |
180 |
485 |
485 |
240 |
225 |
35 |
4-Φ24 |
267 |
Y160M1-2 |
15 |
140 |
||||||||
|
9 |
1600 |
1306 |
|
835 |
176 |
480 |
170 |
485 |
485 |
240 |
225 |
35 |
4-Φ24 |
279 |
Y160M2-2 |
15 |
150 |
||||||||
|
10 |
1695 |
1500 |
|
935 |
195 |
530 |
|
485 |
485 |
240 |
225 |
35 |
4-Φ24 |
291 |
Y160L-2 |
18.5 |
160 |
||||||||
|
11 |
1745 |
1500 |
|
935 |
195 |
580 |
|
485 |
485 |
240 |
225 |
40 |
4-Φ24 |
303 |
Y160L-2 |
18.5 |
170 |
||||||||
|
12 |
1795 |
1500 |
|
935 |
195 |
630 |
310 |
485 |
485 |
240 |
225 |
40 |
4-Φ24 |
315 |
Y160L-2 |
18.5 |
180 |
||||||||
|
|
3 |
1409 |
1320 |
|
800 |
280 |
285 |
200 |
307 |
102.5 |
2 |
|
450 |
450 |
|
315 |
200 |
225 |
|
4-Φ25 |
188 |
Y160M2-2 |
11 |
17 |
|
|
4 |
1464 |
1320 |
|
800 |
280 |
255 |
130 |
450 |
450 |
315 |
225 |
|
4-Φ25 |
218 |
Y160M1-2 |
15 |
125 |
||||||||
|
5 |
1564 |
1320 |
|
800 |
280 |
310 |
157.5 |
450 |
450 |
315 |
225 |
|
4-Φ25 |
248 |
Y160L-2 |
18.5 |
147 |
||||||||
|
6 |
1619 |
1320 |
|
800 |
280 |
365 |
185 |
450 |
450 |
315 |
225 |
|
4-Φ25 |
278 |
Y160L-2 |
18.5 |
147 |
||||||||
|
7 |
1699 |
1435 |
|
850 |
320 |
420 |
197.5 |
480 |
480 |
330 |
250 |
|
4-Φ25 |
246 |
Y180M-2 |
22 |
178 |
||||||||
|
8 |
1754 |
1435 |
|
850 |
320 |
475 |
225 |
480 |
480 |
330 |
250 |
|
4-Φ25 |
338 |
Y180M-2 |
22 |
178 |
||||||||
|
9 |
1916 |
1635 |
500 |
1000 |
320 |
530 |
197.5 |
500 |
500 |
350 |
275 |
|
6-Φ25 |
368 |
Y200L1-2 |
30 |
230 |
||||||||
|
10 |
1971 |
1635 |
500 |
1000 |
320 |
585 |
225 |
500 |
500 |
350 |
275 |
|
6-Φ25 |
398 |
Y200L1-2 |
30 |
230 |
||||||||
|
D12-25 |
3 |
1175 |
874 |
|
600 |
134 |
240 |
180 |
275 |
60 |
3 |
|
445 |
445 |
170 |
230 |
30 |
183 |
30 |
4-Φ25 |
165 |
Y132S2-2 |
30 |
110 |
|
|
4 |
1350 |
1010 |
|
710 |
165 |
350 |
110 |
480 |
480 |
240 |
250 |
35 |
4-Φ25 |
185 |
Y160M1-2 |
37 |
123 |
||||||||
|
5 |
1400 |
1090 |
|
730 |
168 |
280 |
60 |
480 |
480 |
240 |
250 |
35 |
4-Φ25 |
203 |
Y160M1-2 |
45 |
135 |
||||||||
|
6 |
1450 |
1140 |
|
740 |
168 |
330 |
120 |
480 |
480 |
240 |
275 |
30 |
4-Φ25 |
222 |
Y160M2-2 |
55 |
148 |
||||||||
|
7 |
1500 |
1190 |
|
780 |
168 |
380 |
180 |
480 |
480 |
240 |
275 |
30 |
4-Φ25 |
242 |
Y160M2-2 |
55 |
161 |
||||||||
|
8 |
1595 |
1284 |
|
830 |
188 |
430 |
140 |
480 |
480 |
240 |
275 |
|
4-Φ25 |
261 |
Y160L-2 |
75 |
174 |
||||||||
|
9 |
1645 |
1334 |
|
850 |
190 |
480 |
170 |
480 |
480 |
240 |
275 |
35 |
4-Φ25 |
281 |
Y160L -2 |
90 |
189 |
||||||||
|
10 |
1720 |
1397 |
|
870 |
200 |
530 |
110 |
510 |
510 |
260 |
305 |
40 |
4-Φ25 |
297 |
Y180M-2 |
90 |
199 |
||||||||
|
11 |
1770 |
1447 |
|
900 |
900 |
580 |
|
510 |
510 |
240 |
305 |
40 |
4-Φ25 |
318 |
Y180M-2 |
110 |
212 |
||||||||
|
12 |
1925 |
1571 |
|
980 |
220 |
630 |
|
550 |
550 |
550 |
335 |
40 |
4-Φ25 |
346.5 |
Y200L-2 |
110 |
234 |
||||||||
|
D16-60 |
3 |
1707 |
1225 |
|
625 |
300 |
408 |
240.5 |
382.5 |
253 |
4 |
190 |
455 |
455 |
|
330 |
250 |
250 |
|
4-Φ25 |
301 |
Y200L1-2 |
30 |
250 |
|
|
4 |
1877 |
1366 |
458 |
916 |
225 |
|
178 |
490 |
490 |
330 |
275 |
|
6-Φ25 |
330 |
Y200L2-2 |
37 |
275 |
||||||||
|
5 |
1982 |
1540 |
|
1000 |
280 |
370.5 |
159 |
530 |
530 |
365 |
305 |
|
4-Φ25 |
351 |
Y225M-2 |
45 |
305 |
||||||||
|
6 |
2047 |
1540 |
|
1000 |
280 |
435.5 |
224 |
530 |
530 |
265 |
305 |
|
4-Φ25 |
375 |
Y250M-2 |
55 |
315 |
||||||||
|
泵型号 Type of pump |
级数 No.of stage |
外 形 安 装 尺 寸 (公 用 底 板) Overall Dimensions (Common Base) |
泵重 Weight of Pump (kg) |
电动机 Motor |
|||||||||||||||||||||
|
型号 Type |
功率 Power(kg) |
重量 Weight(kg) |
|||||||||||||||||||||||
|
L |
L1 |
L2 |
L3 |
L4 |
L5 |
L6 |
L7 |
L8 |
C |
B |
B1 |
B2 |
B3 |
H |
H1 |
H2 |
h |
n-Φ d |
| ||||||
|
D16-60 |
7 |
2227 |
1970 |
600 |
1200 |
270 |
408 |
500.5 |
382.5 |
212 |
4 |
190 |
465 |
585 |
|
390 |
250 |
325 |
|
6-Φ25 |
402 |
Y250M-2 |
55 |
403 |
|
|
8 |
2362 |
1970 |
725 |
1450 |
270 |
565.5 |
78 |
475 |
645 |
400 |
360 |
|
6-Φ25 |
430 |
Y280S-2 |
75 |
403 |
||||||||
|
9 |
2427 |
1970 |
725 |
1450 |
270 |
630.5 |
143 |
475 |
645 |
400 |
390 |
|
6-Φ25 |
455 |
Y280M-2 |
90 |
549 |
||||||||
|
10 |
2492 |
1970 |
725 |
1450 |
270 |
695.5 |
208 |
475 |
645 |
400 |
360 |
|
6-Φ25 |
480 |
Y280M-2 |
90 |
595 |
||||||||
|
11 |
2607 |
1970 |
790 |
1580 |
270 |
705.5 |
143 |
475 |
645 |
440 |
360 |
|
6-Φ25 |
512 |
Y315S-2 |
110 |
890 |
||||||||
|
12 |
2672 |
2155 |
790 |
1580 |
270 |
825.5 |
208 |
475 |
645 |
440 |
360 |
|
6-Φ25 |
540 |
Y315S-2 |
110 |
890 |
||||||||
|
13 |
2892 |
2345 |
900 |
1800 |
270 |
890.5 |
140 |
490 |
750 |
475 |
445 |
|
6-Φ30 |
570 |
Y315M1-2 |
132 |
990 |
||||||||
|
14 |
2957 |
2345 |
900 |
1800 |
270 |
955.5 |
205 |
490 |
750 |
475 |
445 |
|
6-Φ30 |
605 |
Y315M1-2 |
132 |
990 |
||||||||
![]()
|
泵型号 Type of pump |
级数 No.of stage |
外 形 安 装 尺 寸 (公 用 底 板) Overall Dimensions (Common Base) |
泵重 Weight of Pump (kg) |
电动机 Motor |
|||||||||||||||||||||
|
型号 Type |
功率 Power(kg) |
重量 Weight(kg) |
|||||||||||||||||||||||
|
L |
L1 |
L2 |
L3 |
L4 |
L5 |
L6 |
L7 |
L8 |
C |
B |
B1 |
B2 |
B3 |
H |
H1 |
H2 |
h |
n-Φ d |
| ||||||
|
D25-50 |
3 |
1767 |
1440 |
/ |
900 |
270 |
356 |
243 |
336 |
51 |
2 |
|
500 |
500 |
300 |
360 |
270 |
275 |
50 |
4-Φ25 |
405 |
Y200L1-2 |
30 |
230 |
|
|
4 |
1789 |
1440 |
/ |
900 |
270 |
303 |
111 |
|
500 |
500 |
360 |
275 |
4-Φ25 |
443 |
Y200L2-2 |
37 |
250 |
||||||||
|
5 |
1849 |
1440 |
/ |
900 |
270 |
363 |
171 |
|
500 |
500 |
360 |
275 |
4-Φ25 |
473 |
Y200L2-2 |
37 |
250 |
||||||||
|
6 |
1949 |
1530 |
/ |
950 |
290 |
423 |
191 |
|
530 |
530 |
375 |
305 |
4-Φ25 |
510 |
Y255M-2 |
45 |
315 |
||||||||
|
7 |
2124 |
1695 |
560 |
1120 |
290 |
483 |
186 |
|
480 |
600 |
405 |
325 |
6-Φ25 |
540 |
Y250M-2 |
55 |
403 |
||||||||
|
8 |
2254 |
1945 |
630 |
1260 |
360 |
543 |
132 |
|
500 |
670 |
430 |
360 |
6-Φ25 |
578 |
Y280S-2 |
75 |
549 |
||||||||
|
9 |
2314 |
1945 |
630 |
1260 |
360 |
603 |
192 |
|
500 |
670 |
430 |
360 |
6-Φ25 |
608 |
Y280S-2 |
75 |
549 |
||||||||
|
10 |
2374 |
1945 |
630 |
1260 |
360 |
663 |
252 |
|
500 |
670 |
430 |
360 |
6-Φ25 |
645 |
Y280S-2 |
75 |
549 |
||||||||
|
11 |
2503 |
2072 |
670 |
1340 |
370 |
723 |
351 |
264 |
3 |
|
500 |
670 |
430 |
360 |
60 |
6-Φ25 |
675 |
Y280M-2 |
90 |
595 |
|||||
|
12 |
2703 |
2170 |
710 |
1420 |
380 |
783 |
271 |
|
500 |
750 |
470 |
445 |
6-Φ25 |
713 |
Y315S-2 |
110 |
980 |
||||||||
|
泵型号 Type of pump |
级数 No.of stage |
外 形 安 装 尺 寸 (公 用 底 板) Overall Dimensions (Common Base) |
泵重 Weight of Pump (kg) |
电动机 Motor |
|||||||||||||||||||||
|
型号 Type |
功率 Power(kg) |
重量 Weight(kg) |
|||||||||||||||||||||||
|
L |
L1 |
L2 |
L3 |
L4 |
L5 |
L6 |
L7 |
L8 |
C |
B |
B1 |
B2 |
B3 |
H |
H1 |
H2 |
h |
n-Φ d |
| ||||||
|
D45-80 |
6 |
2790 |
1032 |
432 |
930 |
300 |
451 |
536 |
439 |
160 |
4 |
910 |
710 |
445 |
|
520 |
350 |
495 |
50 |
4Φ32 |
1373 |
JK113-2 |
150 |
915 |
|
|
7 |
2869 |
1032 |
432 |
930 |
300 |
615 |
439 |
182 |
910 |
710 |
520 |
495 |
1475 |
JK113-2 |
150 |
983 |
|||||||||
|
8 |
2938 |
1190 |
590 |
930 |
300 |
694 |
439 |
204 |
910 |
710 |
520 |
495 |
1577 |
JK122-2 |
185 |
1060 |
|||||||||
|
9 |
3111 |
1190 |
590 |
957 |
300 |
773 |
439 |
226 |
5 |
910 |
710 |
520 |
560 |
1733 |
JK123-2 |
220 |
1155 |
||||||||
|
10 |
3196 |
1427 |
827 |
957 |
300 |
852 |
439 |
248 |
910 |
710 |
520 |
560 |
1914 |
JK123-2 |
220 |
1276 |
|||||||||
|
11 |
3405 |
1427 |
827 |
957 |
300 |
931 |
439 |
186 |
910 |
710 |
520 |
560 |
2016 |
JK124-2 |
275 |
1344 |
|||||||||
|
12 |
3484 |
1427 |
827 |
957 |
300 |
1010 |
439 |
208 |
910 |
710 |
520 |
560 |
2120 |
JK124-2 |
275 |
1413 |
|||||||||
|
D46-50 |
3 |
1729 |
1310 |
/ |
875 |
210 |
356 |
243 |
336 |
17 |
2 |
500 |
500 |
300 |
|
360 |
270 |
275 |
50 |
4-Φ25 |
405 |
Y200L2-2 |
37 |
250 |
|
|
4 |
1829 |
1400 |
/ |
925 |
243 |
303 |
336 |
148 |
480 |
550 |
420 |
305 |
443 |
Y225M-2 |
45 |
315 |
|||||||||
|
5 |
2004 |
1559 |
/ |
1020 |
276 |
363 |
336 |
180 |
480 |
600 |
420 |
325 |
473 |
Y280S-2 |
75 |
549 |
|||||||||
|
6 |
2134 |
1745 |
565 |
1130 |
316 |
423 |
336 |
162 |
480 |
650 |
420 |
360 |
60 |
6-Φ25 |
510 |
Y280S-2 |
75 |
549 |
|||||||
|
7 |
2245 |
1875 |
590 |
1180 |
370 |
483 |
336 |
2113 |
480 |
650 |
420 |
360 |
540 |
Y280M-2 |
90 |
595 |
|||||||||
|
8 |
2320 |
1875 |
590 |
1180 |
370 |
543 |
351 |
273 |
3 |
480 |
650 |
420 |
360 |
578 |
Y280M-2 |
90 |
595 |
||||||||
|
9 |
2520 |
2040.5 |
665 |
1330 |
350.5 |
603 |
351 |
191 |
500 |
750 |
515 |
445 |
608 |
Y315S-2 |
110 |
980 |
|||||||||
|
10 |
2630 |
2210.5 |
740 |
1480 |
360.5 |
663 |
351 |
136 |
500 |
750 |
515 |
445 |
645 |
Y315M1-2 IP23 |
132 |
1080 |
|||||||||
|
11 |
2690 |
2210.5 |
740 |
1480 |
360.5 |
723 |
351 |
196 |
500 |
750 |
515 |
445 |
675 |
Y315M1-2 |
132 |
1080 |
|||||||||
|
12 |
3750 |
2210.5 |
740 |
1480 |
360.5 |
783 |
351 |
256 |
500 |
750 |
515 |
445 |
713 |
Y315L1-2 |
160 |
1080 |
|||||||||
![]()
|
泵型号 Type of pump |
级数 No.of stage |
外 形 安 装 尺 寸 (公 用 底 板) Overall Dimensions (Common Base) |
泵重 Weight of Pump (kg) |
电动机 Motor |
||||||||||||||||||||
|
型号 Type |
功率 Power(kg) |
重量 Weight(kg) |
||||||||||||||||||||||
|
L |
L1 |
L2 |
L3 |
L4 |
L5 |
L6 |
L7 |
L8 |
C |
B1 |
B2 |
B3 |
H |
H1 |
H2 |
h |
n-Φ d |
| ||||||
|
D43-30 |
3 |
1427 |
1180 |
/ |
800 |
190 |
245 |
229 |
291 |
96 |
2 |
450 |
450 |
200 |
350 |
200 |
225 |
50 |
4-Φ20 |
203 |
Y160L-2 |
18.5 |
147 |
|
|
4 |
1513 |
1240 |
/ |
800 |
220 |
290 |
293 |
126.5 |
450 |
450 |
350 |
250 |
4-Φ20 |
225 |
Y180M-2 |
22 |
178 |
|||||||
|
5 |
1683 |
1450 |
/ |
950 |
250 |
351 |
123 |
500 |
500 |
350 |
275 |
4-Φ25 |
248 |
Y200L1-2 |
30 |
230 |
||||||||
|
6 |
1744 |
1450 |
/ |
950 |
250 |
412 |
153.6 |
500 |
500 |
350 |
275 |
4-Φ25 |
263 |
Y200L2-2 |
37 |
250 |
||||||||
|
7 |
1845 |
1540 |
/ |
1000 |
270 |
473 |
172 |
450 |
530 |
375 |
305 |
4-Φ25 |
285 |
Y225M-2 |
45 |
319 |
||||||||
|
8 |
2021 |
1835 |
670 |
1340 |
245 |
534 |
77 |
450 |
600 |
400 |
325 |
6-Φ25 |
308 |
Y250M-2 |
55 |
403 |
||||||||
|
9 |
2082 |
1835 |
670 |
1340 |
245 |
595 |
108.5 |
450 |
600 |
400 |
325 |
6-Φ25 |
330 |
Y250M-2 |
55 |
403 |
||||||||
|
10 |
2143 |
1835 |
670 |
1340 |
245 |
656 |
138 |
450 |
600 |
400 |
325 |
6-Φ25 |
353 |
Y250M-2 |
55 |
403 |
||||||||
![]()
|
泵型号 Type of pump |
级数 No.of stage |
外 形 安 装 尺 寸 (公 用 底 板) Overall Dimensions (Common Base) |
泵重 Weight of Pump (kg) |
电动机 Motor |
||||||||||||||||||||
|
型号 Type |
功率 Power(kg) |
重量 Weight(kg) |
||||||||||||||||||||||
|
L |
L1 |
L2 |
L3 |
L4 |
L5 |
L6 |
L7 |
L8 |
C |
B1 |
B2 |
B3 |
H |
H1 |
H2 |
h |
n-Φ d |
| ||||||
|
D85-67 |
3 |
2465 |
1895 |
600 |
1200 |
320 |
479 |
371 |
559 |
230 |
4 |
670 |
670 |
350 |
435 |
350 |
360 |
50 |
6-Φ25 |
1269 |
Y280M-2 |
90 |
595 |
|
|
4 |
2691 |
2020 |
710 |
1420 |
330 |
459 |
220 |
630 |
750 |
470 |
445 |
60 |
6-Φ25 |
1446 |
Y315S-2 |
110 |
980 |
|||||||
|
5 |
2892 |
2250 |
750 |
1500 |
375 |
547 |
235 |
630 |
750 |
470 |
445 |
60 |
6-Φ25 |
1689 |
Y315M2-2 |
160 |
1170 |
|||||||
|
6 |
2917 |
2250 |
750 |
1500 |
375 |
635 |
280 |
630 |
750 |
470 |
445 |
60 |
6-Φ25 |
2151 |
Y315M2-2 |
160 |
1170 |
|||||||
|
7 |
3135 |
2450 |
800 |
1600 |
460 |
723 |
360 |
640 |
880 |
505 |
495 |
60 |
6-Φ25 |
2334 |
Y315L2-2 |
200 |
1100 |
|||||||
|
8 |
3237 |
2655 |
855 |
1710 |
555 |
811 |
406 |
650 |
970 |
560 |
560 |
60 |
6-Φ25 |
2436 |
Y355M1-2 |
220 |
1290 |
|||||||
|
9 |
3361 |
2655 |
855 |
1710 |
555 |
899 |
450 |
650 |
970 |
560 |
560 |
60 |
6-Φ25 |
2760 |
Y355M1-2 |
250 |
1360 |
|||||||
|
泵型号 Type of pump |
级数 No.of stage |
外 形 安 装 尺 寸 (本 身 底 板) Overall Dimensions (Common Base) |
泵重 Weight of Pump (kg) |
电动机 Motor |
|||||||||||||||||||||||
|
型号 Type |
功率 Power(kg) |
重量 Weight(kg) |
|||||||||||||||||||||||||
|
L |
L1 |
L2 |
L3 |
L4 |
L5 |
L6 |
L7 |
L8 |
C |
B |
B1 |
B2 |
B3 |
H |
H1 |
H2 |
h |
h1 |
n-Φ d |
4-Φk |
| ||||||
|
D85-67 |
3 |
2465 |
765 |
400 |
880.5 |
182.5 |
479 |
371 |
559 |
-14.5 |
4 |
419 |
600 |
457 |
350 |
420 |
350 |
280 |
50 |
35 |
4-Φ30 |
Φ24 |
1268 |
Y280M-2 |
90 |
595 |
|
|
4 |
2693 |
765 |
400 |
950.5 |
459 |
29.5 |
406 |
508 |
315 |
45 |
Φ28 |
1446 |
Y315S-2 |
110 |
980 |
||||||||||||
|
5 |
2831 |
765 |
400 |
994.5 |
547 |
73.5 |
457 |
508 |
315 |
Φ28 |
1689 |
Y315M1-2 |
132 |
1080 |
|||||||||||||
|
6 |
2919 |
945 |
580 |
948.5 |
635 |
27.5 |
457 |
508 |
315 |
Φ28 |
2151 |
Y315M2-2 IP23 |
160 |
1170 |
|||||||||||||
|
7 |
2879 |
945 |
280 |
992.5 |
723 |
71.5 |
406 |
508 |
315 |
Φ28 |
2334 |
Y315L1-2 |
200 |
870 |
|||||||||||||
|
8 |
3035 |
1125 |
760 |
946.5 |
811 |
25.5 |
457 |
508 |
315 |
Φ28 |
2436 |
Y355M1-2 |
220 |
985 |
|||||||||||||
|
9 |
3123 |
1125 |
760 |
990.5 |
899 |
69.5 |
457 |
508 |
315 |
Φ28 |
2760 |
Y355M1-2 |
250 |
900 |
|||||||||||||
|
D85-80 |
7 |
3575 |
1190 |
590 |
1008 |
300 |
527 |
630 |
543 |
21 |
5 |
900 |
910 |
630 |
790 |
520 |
360 |
355 |
54 |
45 |
6-Φ25 |
Φ28 |
2351 |
Y3552-2 IP23 |
250 |
950 |
|
|
8 |
3655 |
1190 |
590 |
1155 |
710 |
34 |
2460 |
Y3553-2 IP23 |
280 |
1950 |
|||||||||||||||||
|
9 |
3735 |
1190 |
590 |
1155 |
790 |
83 |
2570 |
Y3554 -2IP23 |
315 |
2050 |
|||||||||||||||||
|
10 |
3815 |
1427 |
827 |
1292 |
870 |
34 |
2679 |
Y3555-2 IP23 |
355 |
2100 |
|||||||||||||||||
|
11 |
3895 |
1427 |
827 |
1292 |
950 |
83 |
2789 |
Y3556-2 IP23 |
400 |
2200 |
|||||||||||||||||
|
12 |
3975 |
1427 |
827 |
1292 |
1030 |
34 |
2898 |
Y4001-2 IP23 |
450 |
2200 |
|||||||||||||||||
|
D150-100 |
6 |
4095 |
1185 |
1085 |
1065 |
50 |
560 |
795 |
650 |
- |
5 |
1000 |
850 |
710 |
/ |
650 |
570 |
400 |
/ |
/ |
6-Φ25 |
Φ35 |
2735 |
Y4001-2 IP23 |
450 |
2300 |
|
|
7 |
4200 |
1290 |
1190 |
1065 |
50 |
560 |
900 |
650 |
- |
5 |
1000 |
400 |
2885 |
Y4002-2 IP23 |
500 |
2400 |
|||||||||||
|
8 |
4305 |
1395 |
1195 |
1065 |
50 |
560 |
1005 |
650 |
- |
5 |
1000 |
710 |
400 |
3035 |
Y4004-2 IP23 |
630 |
2600 |
||||||||||
|
9 |
4410 |
1500 |
1400 |
1065 |
50 |
560 |
1110 |
650 |
- |
5 |
1000 |
850 |
710 |
400 |
3185 |
Y4004-2 IP23 |
630 |
2600 |
|||||||||
|
10 |
4765 |
4605 |
1505 |
1130 |
50 |
560 |
1215 |
650 |
- |
5 |
1120 |
800 |
400 |
3335 |
Y4502-2 IP23 |
800 |
3680 |
||||||||||
![]()
|
泵型号 Type of pump |
级数 No.of stage |
外 形 安 装 尺 寸 (公 用 底 板) Overall Dimensions (Common Base) |
泵重 Weight of Pump (kg) |
电动机 Motor |
||||||||||||||||||||
|
型号 Type |
功率 Power(kg) |
重量 Weight(kg) |
||||||||||||||||||||||
|
L |
L1 |
L2 |
L3 |
L4 |
L5 |
L6 |
L7 |
L8 |
C |
B1 |
B2 |
B3 |
H |
H1 |
H2 |
h |
n-Φ d |
| ||||||
|
100D16 |
3 |
1446 |
1230 |
/ |
840 |
205 |
263 |
306 |
258 |
91 |
3 |
450 |
450 |
220 |
335 |
230 |
225 |
50 |
4-Φ25 |
255 |
Y160M2-2 |
15 |
125 |
|
|
4 |
1523 |
1230 |
/ |
840 |
205 |
383 |
258 |
129.5 |
450 |
450 |
335 |
225 |
4-Φ25 |
285 |
Y160M2-2 |
15 |
125 |
|||||||
|
5 |
1683 |
1445 |
/ |
940 |
230 |
460 |
268 |
116.5 |
450 |
450 |
335 |
250 |
4-Φ25 |
315 |
Y180M-2 |
22 |
178 |
|||||||
|
6 |
1760 |
1445 |
/ |
940 |
230 |
537 |
268 |
155 |
450 |
450 |
335 |
250 |
4-Φ25 |
345 |
Y180M-2 |
22 |
178 |
|||||||
|
7 |
1944 |
1765 |
600 |
1200 |
280 |
614 |
278 |
128.5 |
500 |
500 |
350 |
275 |
6-Φ25 |
375 |
Y200L1-2 |
30 |
230 |
|||||||
|
8 |
2031 |
1765 |
600 |
1200 |
280 |
691 |
278 |
167 |
500 |
500 |
350 |
275 |
6-Φ25 |
405 |
Y200L1-2 |
30 |
230 |
|||||||
|
9 |
2108 |
1765 |
600 |
1200 |
280 |
768 |
278 |
205.5 |
500 |
500 |
350 |
275 |
6-Φ25 |
435 |
Y200L2-2 |
37 |
230 |
|||||||
![]()
|
泵型号 Type of pump |
级数 No.of stage |
外 形 安 装 尺 寸 (公 用 底 板) Overall Dimensions (Common Base) |
泵重 Weight of Pump (kg) |
电动机 Motor |
|||||||||||||||||||
|
型号 Type |
功率 Power(kg) |
重量 Weight(kg) |
|||||||||||||||||||||
|
L |
L1 |
L2 |
L3 |
L4 |
L5 |
L6 |
L7 |
L8 |
C |
B1 |
B2 |
H |
H1 |
H2 |
h |
n-Φ d |
| ||||||
|
125D25 |
3 |
1644 |
1455 |
/ |
940 |
230 |
241 |
352 |
277 |
104 |
2 |
530 |
530 |
360 |
300 |
275 |
50 |
4-Φ25 |
390 |
Y200L1-2 |
30 |
230 |
|
|
4 |
1754 |
1455 |
/ |
940 |
230 |
442 |
277 |
149 |
530 |
530 |
360 |
275 |
50 |
4-Φ25 |
390 |
Y200L2-2 |
37 |
250 |
|||||
|
5 |
1894 |
1560 |
550 |
1100 |
230 |
532 |
287 |
154.5 |
560 |
560 |
375 |
305 |
50 |
6-Φ25 |
480 |
Y200M-2 |
45 |
319 |
|||||
|
6 |
2099 |
1755 |
600 |
1200 |
280 |
622 |
287 |
199 |
630 |
630 |
400 |
325 |
50 |
6-Φ40 |
525 |
Y250M-2 |
55 |
403 |
|||||
|
7 |
2257 |
2170 |
710 |
1420 |
380 |
712 |
287 |
214.5 |
600 |
710 |
450 |
360 |
60 |
6-Φ40 |
570 |
Y280S-2 |
75 |
549 |
|||||
|
8 |
2334 |
2170 |
710 |
1420 |
380 |
802 |
287 |
214.5 |
600 |
710 |
450 |
360 |
60 |
6-Φ40 |
615 |
Y280S-2 |
75 |
549 |
|||||
|
9 |
2461 |
2170 |
710 |
1420 |
380 |
892 |
287 |
285 |
4 |
600 |
710 |
450 |
360 |
60 |
6-Φ40 |
660 |
Y280M-2 |
90 |
595 |
||||
|
泵型号 Type of pump |
级数 No.of stage |
外 形 安 装 尺 寸 (本 身 底 板) Overall Dimensions (Pump Base) |
泵重 Weight of Pump (kg) |
电动机 Motor |
||||||||||||||||||||||
|
型号 Type |
功率 Power(kg) |
重量 Weight(kg) |
||||||||||||||||||||||||
|
L |
L1 |
L2 |
L3 |
L4 |
L5 |
L6 |
L7 |
L8 |
C |
B1 |
B2 |
B3 |
H |
H1 |
H2 |
h |
h1 |
n-Φ d |
4-Φk |
| ||||||
|
150D30 (D155-30/84) |
3 |
2141 |
730 |
450 |
711.5 |
140 |
132 |
425 |
388 |
12.5 |
4 |
600 |
457 |
350 |
400 |
350 |
280 |
45 |
35 |
4-Φ27 |
Φ24 |
810 |
Y280S-4 |
75 |
560 |
|
|
4 |
2306 |
730 |
450 |
740 |
540 |
45 |
457 |
280 |
Φ24 |
930 |
Y280M-4 |
90 |
660 |
|||||||||||||
|
5 |
2598 |
1075 |
795 |
769 |
655 |
418 |
70 |
508 |
315 |
45 |
Φ28 |
1035 |
Y315S-4 |
110 |
1000 |
|||||||||||
|
6 |
2754 |
1075 |
795 |
797.5 |
770 |
12.5 |
508 |
315 |
Φ28 |
1155 |
Y315M1-4 |
132 |
1100 |
|||||||||||||
|
7 |
2869 |
1075 |
795 |
855 |
885 |
45 |
508 |
315 |
Φ28 |
1275 |
Y315M2-4 |
160 |
1150 |
|||||||||||||
|
8 |
3610 |
1400 |
1120 |
890 |
1000 |
60 |
5 |
630 |
355 |
30 |
Φ28 |
1395 |
Y315L2-4 |
200 |
1910 |
|||||||||||
|
9 |
3725 |
1400 |
1120 |
947.5 |
1115 |
2.5 |
630 |
355 |
Φ28 |
1515 |
Y315L2-4 |
200 |
1910 |
|||||||||||||
|
10 |
3840 |
1400 |
1120 |
1005 |
1230 |
55 |
630 |
355 |
Φ28 |
1635 |
Y355M1-4 |
220 |
2030 |
|||||||||||||
|
Type of pump |
级数 No.of stage |
外 形 安 装 尺 寸 (公 用 底 板) Overall Dimensions (Common Base) |
泵重 Weight of Pump (kg) |
电动机 Motor |
||||||||||||||||||||
|
型号 Type |
功率 Power(kg) |
重量 Weight(kg) |
||||||||||||||||||||||
|
L |
L1 |
L2 |
L3 |
L4 |
L5 |
L6 |
L7 |
L8 |
C |
B1 |
B2 |
B3 |
H |
H1 |
H2 |
h |
n-Φ d |
| ||||||
|
150D30 (D155-30/84) |
3 |
2141 |
1885 |
600 |
1200 |
340 |
322 |
425 |
388 |
670 |
4 |
670 |
670 |
350 |
430 |
3500 |
360 |
50 |
6-Φ30 |
810 |
Y280S-4 |
75 |
549 |
|
|
4 |
2306 |
1885 |
600 |
1200 |
340 |
540 |
388 |
670 |
670 |
670 |
430 |
360 |
50 |
6-Φ30 |
930 |
Y280M |
90 |
595 |
||||||
|
5 |
2599 2089 |
2560 |
825 |
1655 |
502 |
655 |
418 |
630 |
630 |
890 |
475 |
495 |
50 |
6-Φ26 |
1035 |
Y315S-4 |
110 |
950 |
||||||
|
6 |
2714 2204 |
2560 |
825 |
1655 |
205 |
770 |
418 |
630 |
630 |
890 |
475 |
495 |
50 |
6-Φ26 |
1155 |
Y315M1-4 |
132 |
990 |
||||||
|
7 |
2889 3379 |
2560 |
825 |
1655 |
642 |
880 |
418 |
630 |
630 |
890 |
475 |
495 |
50 |
6-Φ26 |
1275 |
Y315M2-4 |
160 |
1070 |
||||||
|
8 |
3004 3494 |
2710 |
840 |
1680 |
642 |
1000 |
418 |
618 |
5 |
618 |
860 |
475 |
495 |
50 |
6-Φ26 |
1395 |
Y315L2-4 |
200 |
1130 |
|||||
|
9 |
3119 3609 |
2710 |
840 |
1680 |
642 |
1115 |
418 |
618 |
618 |
860 |
475 |
495 |
50 |
6-Φ26 |
1515 |
Y315L2-4 |
200 |
1130 |
||||||
|
10 |
3304 3784 |
2710 |
840 |
1790 |
710 |
1230 |
418 |
615 |
640 |
860 |
550 |
560 |
50 |
6-Φ26 |
1635 |
Y355M1-4 |
220 |
1310 |
||||||
|
泵型号 Type of pump |
级数 No.of stage |
外 形 安 装 尺 寸 (公 用 底 板) Overall Dimensions (Common Base) |
泵重 Weight of Pump (kg) |
电动机 Motor |
||||||||||||||||||||
|
型号 Type |
功率 Power(kg) |
重量 Weight(kg) |
||||||||||||||||||||||
|
L |
L1 |
L2 |
L3 |
L4 |
L5 |
L6 |
L7 |
L8 |
C |
B1 |
B2 |
B3 |
H |
H1 |
H2 |
h |
n-Φ d |
| ||||||
|
D155-67 |
3 |
2653 |
1985 |
710 |
1420 |
285 |
479 |
371 |
557 |
190 |
4 |
630 |
750 |
350 |
470 |
350 |
495 |
60 |
6-Φ30 |
1428 |
Y315M1-2 |
132 |
1080 |
|
|
4 |
2869 |
2185 |
/ |
1465 |
330 |
459 |
557 |
230 |
640 |
880 |
505 |
495 |
50 |
6-Φ30 |
1536 |
JS355M2-2 |
190 |
1110 |
||||||
|
5 |
3007 |
2465 |
795 |
1590 |
420 |
547 |
557 |
271 |
650 |
970 |
550 |
560 |
50 |
6-Φ30 |
1717.5 |
JS2400S1-2 |
220 |
1320 |
||||||
|
6 |
3166 |
2465 |
795 |
1590 |
420 |
635 |
557 |
315 |
5 |
650 |
970 |
550 |
560 |
50 |
6-Φ30 |
2153 |
JS2400M1-2 |
280 |
1500 |
|||||
|
7 |
3564 |
2855 |
805 |
1820 |
490 |
723 |
557 |
360 |
700 |
1120 |
660 |
625 |
60 |
6-Φ30 |
2337 |
LK134-2 |
350 |
2350 |
||||||
|
8 |
3652 |
3030 |
910 |
1820 |
580 |
811 |
557 |
405.5 |
700 |
1120 |
660 |
625 |
60 |
6-Φ30 |
2550 |
LK134-2 |
350 |
2350 |
||||||
|
9 |
3740 |
3030 |
910 |
1820 |
580 |
899 |
557 |
450 |
700 |
1120 |
660 |
625 |
60 |
6-Φ30 |
2790 |
LK134-2 |
440 |
2390 |
||||||
![]()
|
泵型号 Type of pump |
级数 No.of stage |
外 形 安 装 尺 寸 (本 身 底 板) Overall Dimensions (Pump Base) |
泵重 Weight of Pump (kg) |
电动机 Motor |
|||||||||||||||||||||||
|
型号 Type |
功率 Power(kg) |
重量 Weight(kg) |
|||||||||||||||||||||||||
|
L |
L1 |
L2 |
L3 |
L4 |
L5 |
L6 |
L7 |
L8 |
C |
B |
B1 |
B2 |
B3 |
H |
H1 |
H2 |
h |
h1 |
n-Φ d |
4-Φk |
| ||||||
|
D155-67 |
3 |
2655 |
765 |
400 |
906.5 |
182.5 |
479 |
371 |
559 |
14.5 |
4 |
457 |
600 |
508 |
350 |
420 |
350 |
315 |
50 |
45 |
4-Φ43 |
Φ28 |
1388 |
Y315M1-2 |
132 |
1080 |
|
|
4 |
2683 |
765 |
400 |
950.5 |
459 |
29.5 |
406 |
508 |
315 |
Φ28 |
1536 |
Y315M1-2 (IP23) |
185 |
870 |
|||||||||||||
|
5 |
2771 |
765 |
400 |
994.5 |
547 |
73.5 |
457 |
508 |
315 |
Φ28 |
1718 |
Y315M1-2 |
220 |
870 |
|||||||||||||
|
6 |
3556 |
945 |
580 |
987.5 |
635 |
27.5 |
5 |
560 |
610 |
355 |
80 |
Φ32 |
2153 |
Y355M-2 |
280 |
1860 |
|||||||||||
|
7 |
3644 |
945 |
580 |
1031.5 |
723 |
71.5 |
560 |
610 |
355 |
Φ32 |
2337 |
Y355M-2 |
315 |
1860 |
|||||||||||||
|
8 |
3732 |
1125 |
760 |
985.5 |
811 |
25.5 |
560 |
610 |
355 |
Φ32 |
2550 |
Y355M-2 |
355 |
1860 |
|||||||||||||
|
9 |
3752 |
1125 |
760 |
1095.5 |
899 |
69.5 |
860 |
790 |
485 |
Φ32 |
2790 |
Y3556-2 |
400 |
2330 |
|||||||||||||
|
泵型号 Type of pump |
级数 No.of stage |
外 形 安 装 尺 寸 (本 身 底 板) Overall Dimensions (Pump Base) |
泵重 Weight of Pump (kg) |
电动机 Motor |
|||||||||||||||||||||||
|
型号 Type |
功率 Power(kg) |
重量 Weight(kg) |
|||||||||||||||||||||||||
|
L |
L1 |
L2 |
L3 |
L4 |
L5 |
L6 |
L7 |
L8 |
C |
B |
B1 |
B2 |
B3 |
H |
H1 |
H2 |
h |
h1 |
n-Φ d |
4-Φk |
| ||||||
|
200D43 |
3 |
2520 |
725 |
425 |
827 |
150 |
388 |
503 |
384 |
28 |
5 |
457 |
700 |
508 |
450 |
450 |
400 |
315 |
45 |
45 |
4-Φ30 |
Φ28 |
1440 |
Y315M2-4 |
160 |
1170 |
|
|
4 |
3275 |
1031 |
633 |
93 |
900 |
630 |
355 |
30 |
Φ28 |
1650 |
Y315L2-4 |
200 |
1910 |
||||||||||||||
|
5 |
3405 |
902 |
763 |
38 |
900 |
630 |
355 |
30 |
Φ28 |
1808 |
Y355M2-4 |
250 |
1910 |
||||||||||||||
|
6 |
3535 |
967 |
893 |
27 |
900 |
630 |
355 |
30 |
Φ28 |
2025 |
Y355L1-4 |
280 |
2050 |
||||||||||||||
|
7 |
3926 |
1083 |
1023 |
414 |
92 |
6 |
1000 |
710 |
400 |
30 |
Φ35 |
2190 |
Y335L1-4 (IP23) |
355 |
2620 |
||||||||||||
|
8 |
4056 |
978 |
110 |
1153 |
13 |
1000 |
70 |
400 |
30 |
Φ35 |
2415 |
Y4003-4 |
450 |
2770 |
|||||||||||||
|
9 |
4086 |
1043 |
1283 |
52 |
1000 |
710 |
400 |
30 |
Φ35 |
2580 |
Y4003-4 |
450 |
2770 |
||||||||||||||
![]()
|
泵型号 Type of pump |
级数 No.of stage |
外 形 安 装 尺 寸 (本 身 底 板) Overall Dimensions (Pump Base) |
泵重 Weight of Pump (kg) |
电动机 Motor |
|||||||||||||||||||||||
|
型号 Type |
功率 Power(kg) |
重量 Weight(kg) |
|||||||||||||||||||||||||
|
L |
L1 |
L2 |
L3 |
L4 |
L5 |
L6 |
L7 |
L8 |
C |
B |
B1 |
B2 |
B3 |
H |
H1 |
H2 |
h |
h1 |
n-Φ d |
4-Φk |
| ||||||
|
D280-43/84 (200D43) |
3 |
2567 |
625 |
310 |
898.5 |
157.5 |
429 |
503 |
388 |
75.5 |
5 |
457 |
720 |
508 |
450 |
480 |
400 |
315 |
50 |
30 |
4-Φ40 |
4-Φ28 |
1181 |
Y315M2-4 |
160 |
1170 |
|
|
4 |
3322 |
755 |
440 |
1037.5 |
633 |
900 |
630 |
355 |
4-Φ28 |
1362 |
Y315L2-4 |
200 |
1910 |
||||||||||||||
|
5 |
3452 |
885 |
570 |
1037.5 |
763 |
900 |
630 |
355 |
4-Φ28 |
1542 |
Y355M2-4 |
250 |
1990 |
||||||||||||||
|
6 |
3582 |
1015 |
700 |
1037.5 |
893 |
900 |
630 |
355 |
4-Φ28 |
1724 |
Y355L1-4 |
280 |
2050 |
||||||||||||||
|
7 |
3905 |
1145 |
830 |
1090.5 |
1023 |
420 |
5 |
1000 |
710 |
400 |
4-Φ35 |
1907 |
Y355L1-4 |
355 |
2620 |
||||||||||||
|
8 |
4035 |
1275 |
960 |
1090.5 |
1153 |
1000 |
710 |
400 |
4-Φ35 |
2087 |
Y4003-4 |
450 |
2690 |
||||||||||||||
|
9 |
4165 |
1405 |
1090 |
1090.5 |
1283 |
1000 |
710 |
400 |
4-Φ35 |
2282 |
Y4003-4 |
450 |
2770 |
||||||||||||||
|
泵型号 Type of pump |
级数 No.of stage |
外 形 安 装 尺 寸 (本 身 底 板) Overall Dimensions (Pump Base) |
泵重 Weight of Pump (kg) |
电动机 Motor |
|||||||||||||||||||||||
|
型号 Type |
功率 Power(kg) |
重量 Weight(kg) |
|||||||||||||||||||||||||
|
L |
L1 |
L2 |
L3 |
L4 |
L5 |
L6 |
L7 |
L8 |
C |
B |
B1 |
B2 |
B3 |
H |
H1 |
H2 |
h |
h1 |
n-Φ d |
4-Φk |
| ||||||
|
D280-65/84 (250D65) |
3 |
3509 |
690 |
310 |
1243 |
190 |
536 |
475 |
625 |
80 |
6 |
900 |
790 |
630 |
500 |
530 |
500 |
355 |
50 |
30 |
4-Φ40 |
Φ28 |
1509 |
Y355L1-4 |
280 |
2050 |
|
|
4 |
3799 |
820 |
440 |
1263 |
605 |
1000 |
710 |
400 |
Φ35 |
1782 |
Y355L1-4 IP23 |
355 |
2620 |
||||||||||||||
|
5 |
3929 |
950 |
570 |
1263 |
735 |
1000 |
710 |
400 |
Φ35 |
2065 |
Y4003-4 |
450 |
2770 |
||||||||||||||
|
6 |
4060 |
1080 |
700 |
1264 |
865 |
1000 |
710 |
400 |
Φ35 |
2328 |
Y4004-4 |
500 |
2860 |
||||||||||||||
|
7 |
4360 |
1210 |
830 |
1284 |
995 |
7 |
1120 |
800 |
450 |
Φ35 |
2001 |
Y4501-4 |
630 |
3510 |
|||||||||||||
|
8 |
4490 |
1340 |
960 |
1284 |
1125 |
1120 |
800 |
450 |
Φ35 |
2874 |
Y4502-4 |
710 |
2860 |
||||||||||||||
|
9 |
4620 |
1470 |
1090 |
1284 |
1255 |
1120 |
800 |
450 |
Φ35 |
3147 |
Y4503-4 |
800 |
3860 |
||||||||||||||
|
10 |
4975 |
1600 |
1220 |
1444 |
1385 |
1250 |
900 |
500 |
Φ42 |
3420 |
Y4504-4 |
900 |
4460 |
||||||||||||||
![]()
|
泵型号 Type of pump |
级数 No.of stage |
外 形 安 装 尺 寸 (本 身 底 板) Overall Dimensions (Pump Base) |
泵重 Weight of Pump (kg) |
电动机 Motor |
|||||||||||||||||||||||
|
型号 Type |
功率 Power(kg) |
重量 Weight(kg) |
|||||||||||||||||||||||||
|
L |
L1 |
L2 |
L3 |
L4 |
L5 |
L6 |
L7 |
L8 |
C |
B |
B1 |
B2 |
B3 |
H |
H1 |
H2 |
h |
h1 |
n-Φ d |
4-Φk |
| ||||||
|
D450-60/84 (250D60) |
3 |
3738 3489 |
770 |
388 |
1243 |
190 |
537 |
574 |
591 |
88 |
7 |
1000 870 |
850 |
710 940 |
500 |
560 |
550 |
400 560 |
50 |
30 110 |
4-Φ42 |
Φ35 Φ42 |
2625 |
Y355L1-4 JSQ147-4 |
355 360 |
2620 3000 |
|
|
4 |
3891 3742 |
920 |
541 |
1243 |
727 |
1000 970 |
710 940 |
400 260 |
30 110 |
Φ35 Φ42 |
3000 |
Y4004-4 JSQ1410-4 |
500 |
2860 3550 |
|||||||||||||
|
5 |
4241 3930 |
1075 |
694 |
1263 |
880 |
1120 1020 |
800 110 |
450 630 |
30 110 |
Φ35 Φ42 |
3375 |
Y4501-4 JSQ158-4 |
630 680 |
3510 4500 |
|||||||||||||
|
6 |
4367 4083 |
1230 |
847 |
1263 |
1033 |
1120 1120 |
800 1100 |
450 630 |
30 110 |
Φ35 Φ42 |
3750 |
Y4501-4 JSQ1510-4 |
630 680 |
3510 4500 |
|||||||||||||
|
7 |
4520 4336 |
1380 |
1000 |
1263 |
1186 |
1120 1020 |
800 1100 |
450 630 |
30 110 |
Φ35 Φ42 |
4125 |
Y4503-4 JSQ1510-4 |
800 850 |
3860 5050 |
|||||||||||||
|
8 |
4898 4489 |
1535 |
1153 |
1423 |
1339 |
1250 1120 |
900 1100 |
500 630 |
30 110 |
Φ42 |
4500 |
Y4504-4 JSQ1510-4 |
900 850 |
4460 5050 |
|||||||||||||
|
9 |
5051 4642 |
1685 |
1306 |
1423 |
1492 |
1250 1250 |
900 1100 |
500 630 |
30 110 |
Φ42 |
4875 |
Y5001-4 JSQ1512-4 |
1000 1050 |
4610 5400 |
|||||||||||||
|
10 |
5204 4795 |
1840 |
1450 |
1423 |
1645 |
1250 1120 |
900 1100 |
500 630 |
30 110 |
Φ42 |
5250 |
Y5002-4 JSQ1512-4 |
1120 1050 |
4920 5400 |
|||||||||||||